Ray White Orakei

Ray White Orakei is a successful real estate business based in Coates Avenue, Orakei. We help people achieve their ultimate goal with their most prized possession - their home - upon selling, in a professional way. We are a small team of highly experienced agents who have high level marketing and negotiating skills. We care about our vendors and buyers (and have personal experiences in both areas).

Ray White Orakei
Megan Jaffe Real Estate Ltd Licensed (REAA 2008)

Real Estate Agents

Ray White Orakei
Ray White Orakei
Unit 4
78 Coates Avenue
Orakei
Auckland 1071
Listing #:
ORK31229
Listed:
439 days ago

Asking Price from $895,000

Premium Sections in Exclusive Enclave

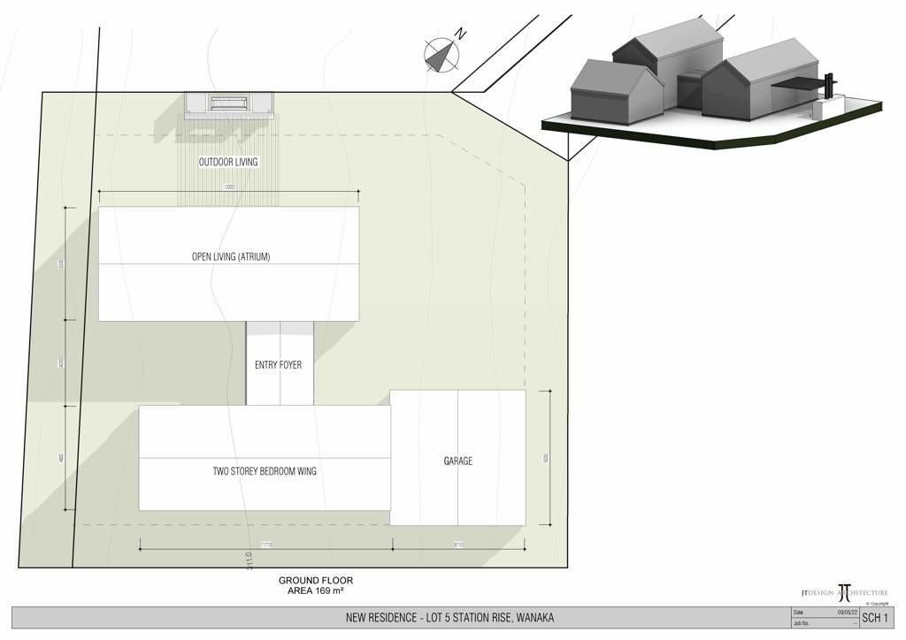
4 and 9 Theodore Court, Station Rise, Wanaka, Queenstown-lakes
Other
landarea
582m2 Land Area
About this property
Station Rise is an exclusive high quality boutique development consisting of just 14 premium house sites.

Located on a gently sloping north-facing corner site with fully mature and protected trees Station Rise is just across the road from the picturesque Wanaka Station Park where the original lake front homestead was built when the area was first settled. Just a 3 minute walk from the shores of Lake Wānaka and the famous willow tree this location is sunny and warm and sheltered from the prevailing winds.

This premium development is extremely convenient being just a short walk along the lakefront to the Wanaka Township and Marina.

With titles recently issued there are now 4 high quality homes either completed or under construction setting the standard of this exclusive area. There is a building and design team available should you require assistance to make the process as easy and seamless as possible.

When you arrive at Station Rise through the stone entranceway and make your way up the wide private street you instantly feel the quality that puts this enclave in a league of its own.

There are design covenants in place to ensure the quality and design of all houses will be to a high standard which under pins the future values of all properties.

Lot 15 at 582sqm (more or less) is arguably one of the best sites in Station Rise and is fully serviced and ready for you to build your family dream home.

Lot 5 is 648sqm (more or less) delivering a private site up a private ROW.

Contact us today for further details or to arrange a site visit.
Check out whether you can get fibre internet
Meet your new neighbours on Neighbourly